Зимний дом 57 кв м в в комплектации

Обзор
Стоимость
4 300 000
Категория землиИЖС
Тип строенияДом
Площадь, кв.м.57
Адрес
Регион страныСанкт-Петербург
РайонКрасносельский район
Населенный пунктСеверная Верфь
Населенный пункт рядомКрасное Село
Метропроспект Ветеранов, 25 мин. транспортом
В избранное Зимний дом 57 кв м в в комплектации

       1. «Тёплый контур» / «Дом под отделку» - 3 000 000 руб.

       2. «Оптима» / «Стандарт» - 3 900 000 руб.

       3. "Максимальная"  - 4 300 000 руб

 «Тёплый контур» / «Дом под отделку»

Идеальная база для тех, кто хочет сэкономить и построить своими силами.. Вы получаете полноценный дом: фундамент, стены, крыша, качественные окна и входная дверь. Дом закрыт от осадков, можно делать внутренние работы в своем темпе.
Инженерку и отделку сможете сделать сами или заказать у нас позже, когда появятся деньги 

«Оптима» / «Стандарт»

Золотая середина. Дом готов с отделкой,  инженерка включена  (скважина до 40 м,  канализация септик) заезжай и живи.

"Максимальная"

Улучшенная версия «Оптима» / «Стандарт».

Уютный домик 57 м² 

Дом для тех, кто ищет не просто стены, а надёжное,уютное и комфортное место за городом.

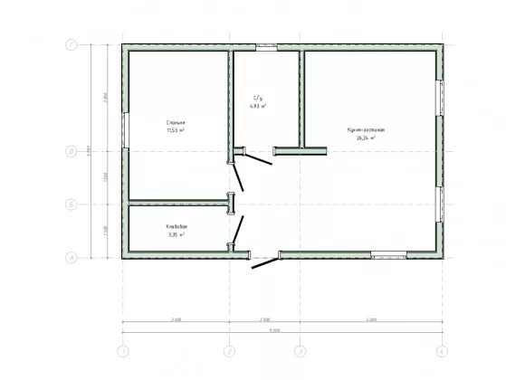
Описание планировки:

· ✅ Кухня-гостинная 26,2 м²  

· ✅ Уютная спальня 11,5 м²

· ✅ Просторный санузел 4,9 м²

· ✅ Кладовая 3,3 м²

- фундамент- ж/б сваи 150/150/3000

- обвязка : 150/150 сухая строганная доска камерной сушки с септированием

- сетка от грызунов

- супердиффузионная мембрана ondutiss PRO AM 130

- лаги пола: доска камерной сушки 45/195

- утепление пола 200мм

- каркас с шагом стоек 600мм из сухой строганной доски камерной сушки 45/145

- стропила: доска камерной сушки 45/145 с перекрёстным утеплением (общее

утепление 200мм)

- межкомнатные перегородки 150мм либо 100мм с шумоизоляцией

- пароизоляция с отсечением наружных стен ondutiss smart D

- проклейка швов мембраны и пароизоляции скотчем isover paranet

- утеплитель isover тёплый дом плита (610мм)

- металлочерепица M35 Monterra (цвет на выбор)

- снегозадержатели по периметру крыши

- водосточная система (цвет на выбор)

- наружная отделка : сайдинг (имитация бруса, фальц, фиброцемент является

дополнительной опцией)

- наличники на окна, углы, свесы крыши, торцы из планкена высшего сорта с

пропиткой маслом в любой цвет. Монтаж с зазором 3 мм

- терраса: все деревянные элементы с пропиткой маслом в 2 слоя.

- полы :террасная доска ель 20/145

- лестница (времянка)

- окна melke 6 камер профиль, 2ух камерный стеклопакет

- отливы на окна 150мм (цвет на выбор)

- цокольные панели u-plast кирпич (цвет на выбор)

- отливы на цоколь (70мм цвет на выбор)

- подоконники белые 150мм

- сетки москитные (доп опция)

- котельная:

- точка подключения стиральной машины

- трап с сухим затвором (страховочный)

- коллектора горячего и холодного водоснабжения на нужное количество выводов

- водонагреватель на 105 литров

- фильтр 0.5 микрон

- на кухне: выполнены выводы и подача воды для раковины, посудомойки

- санузел:

- плитка на полу ( с гидроизоляцией)

- углы в санузле с герметизацией( в цвет затирки)

- душевая

- унитаз

- зеркало с подсветкой

- раковина с тумбой

- смеситель

- двери межкомнатные влагостойкие с антивандальным покрытием

- ручки и завертки на выбор

- дверь входная с терморазрывом

- стены: вагонка/имитация бруса 20мм с покраской в 2 слоя (цвет на выбор)

- наличники , доборы и прочее с покраской

- плинтус (цвет на выбор)

- стяжка пола 6-10см

- напольное покрытие ламинат 33 класса (устойчив к влаге и истиранию)

- обогреватели под каждым окном

- скважина до 35 метров ( шнековое бурение)

- вся автоматика для скважины

- завод воды в дом с обязательной укладкой греющего кабеля не менее 5 метров

- септик гринсток 2 м³ (станция биологической очистки как доп опция)

Полное сопровождение ипотеки БЕСПЛАТНО! Возьмем на себя все хлопоты: подберем выгодную программу, подготовим документы, подадим заявки и будем контролировать одобрение. Повысим ваши шансы на одобрение и сэкономим ваше время! Работаем с опытным юристом.

Расположение

Важно! На карте не всегда указано точное местоположение. Более точную информацию можно узнать у менеджера, разместившего объект