Зимний дом 67 кв м в комплектации
| Стоимость | 5 000 000 |
|---|---|
| Категория земли | ИЖС |
| Тип строения | Дом |
| Площадь, кв.м. | 67 |
| Регион страны | Санкт-Петербург |
|---|---|
| Район | Красносельский район |
| Населенный пункт | Северная Верфь |
| Населенный пункт рядом | Красное Село |
| Метро | проспект Ветеранов, 25 мин. транспортом |
1. «Тёплый контур» / «Дом под отделку» - 4 300 000 руб.
2. «Оптима» / «Стандарт» - 5 000 000 руб.
3. "Максимальная" - 6 000 000 руб
«Тёплый контур» / «Дом под отделку»
Идеальная база для тех, кто хочет сэкономить и построить своими силами.. Вы получаете полноценный дом: фундамент, стены, крыша, качественные окна и входная дверь. Дом закрыт от осадков, можно делать внутренние работы в своем темпе.
Инженерку и отделку сможете сделать сами или заказать у нас позже, когда появятся деньги
«Оптима» / «Стандарт»
Золотая середина. Дом готов с отделкой, инженерка включена (скважина до 40 м, канализация септик) заезжай и живи.
"Максимальная"
Улучшенная версия «Оптима» / «Стандарт».
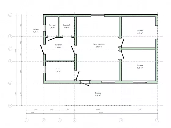
Уютный домик 67 м² для постоянного проживания.
Этот проект покорил наших заказчиков своей гармонией: здесь нет лишних метров, зато есть всё для счастливой жизни . Дом для тех, кто ищет не просто стены, а надёжное и комфортное место за городом .
В описание планировки:
· ✅ Кухня-гостинная 20,9 м² : Идеальное место для сбора семьи-сердце дома.
· ✅ Крытая терраса 12 м²: Ваша летняя гостиная для завтраков,
обедов и теплых вечеров .
· ✅ Две изолированные спальни по 8 м²: Уютные личные пространства для
родителей и детей.
· ✅ Санузел 4,1 м²:
· ✅ Гардероб 2 м²: обязателен в любом современном доме
· ✅ Тех. помещение 1,8 м²: удобное и безопасное место расположения всех инженерных систем.
- фундамент- ж/б сваи 150/150/3000
- обвязка : 150/150 сухая строганная доска камерной сушки с септированием
- сетка от грызунов
- супердиффузионная мембрана ondutiss PRO AM 130
- лаги пола: доска камерной сушки 45/195
- утепление пола 300мм
- каркас с шагом стоек 600мм из сухой строганной доски камерной сушки 45/145
- стропила: доска камерной сушки 45/145 с перекрёстным утеплением (общее
утепление 200мм)
- межкомнатные перегородки 150мм либо 100мм с шумоизоляцией
- пароизоляция с отсечением наружных стен ondutiss smart D
- проклейка швов мембраны и пароизоляции скотчем isover paranet
- утеплитель isover тёплый дом плита (610мм)
- металлочерепица M35 Monterra (цвет на выбор)
- снегозадержатели по периметру крыши
- водосточная система (цвет на выбор)
- наружная отделка : сайдинг (имитация бруса, фальц, фиброцемент является
дополнительной опцией)
- наличники на окна, углы, свесы крыши, торцы из планкена высшего сорта с
пропиткой маслом в любой цвет. Монтаж с зазором 3 мм
- терраса: все деревянные элементы с пропиткой маслом в 2 слоя.
- полы :террасная доска ель 20/145
- ограждение террасы (форма на выбор)
- лестница (времянка)
- внутренняя лестница : ель высшего сорта с пропиткой (в случае наличия второго
этажа)
- окна melke 6 камер профиль, 2ух камерный стеклопакет
- отливы на окна 150мм (цвет на выбор)
- цокольные панели u-plast кирпич (цвет на выбор)
- отливы на цоколь (70мм цвет на выбор)
- подоконники белые 150мм
- сетки москитные (доп опция)
- котельная:
- точка подключения стиральной машины
- трап с сухим затвором (страховочный)
- коллектора горячего и холодного водоснабжения на нужное количество выводов
- водонагреватель на 105 литров
- фильтр 0.5 микрон
- на кухне: выполнены выводы и подача воды для раковины, посудомойки
- санузел:
- керамогранит на полу ( с гидроизоляцией)
- углы в санузле с герметизацией( в цвет затирки)
- душевая
- унитаз
- зеркало с подсветкой
- раковина с тумбой
- смеситель
- потолки натяжные (запас точек освещения в 2 раза от рекомендованных
производителем)
- двери межкомнатные влагостойкие с антивандальным покрытием
- ручки и завертки на выбор
- дверь входная с терморазрывом
- стены: имитация бруса 20мм с покраской в 2 слоя (цвет на выбор)
- наличники , доборы и прочее с покраской
- плинтус (цвет на выбор)
- стяжка пола 6-10см
- напольное покрытие ламинат 33 класса (устойчив к влаге и истиранию)
- обогреватели под каждым окном
- скважина до 35 метров ( шнековое бурение)
- вся автоматика для скважины
- завод воды в дом с обязательной укладкой греющего кабеля не менее 5 метров
- септик гринсток 2 м³ (станция биологической очистки как доп опция)
Полное сопровождение ипотеки БЕСПЛАТНО! Возьмем на себя все хлопоты: подберем выгодную программу, подготовим документы, подадим заявки и будем контролировать одобрение. Повысим ваши шансы на одобрение и сэкономим ваше время! Работаем с опытным юристом.











