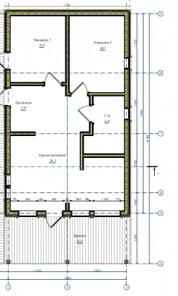
Зимний дом 70 кв м в комплектации
| Стоимость | 4 700 000 |
|---|---|
| Категория земли | ИЖС |
| Тип строения | Дом |
| Площадь, кв.м. | 70 |
| Регион страны | Санкт-Петербург |
|---|---|
| Район | Красносельский район |
| Населенный пункт | Северная Верфь |
Качественный, крепкий и теплый дом для постоянного проживания.
Стоимость 4 700 000 руб цена за дом с отделкой и коммуникациями готовый к проживанию.
Есть множество вариантов планировок, выбирайте из наших готовых. Они доведены до совершенства нашим проектировщиком на основе опыта десятков уже построенных домов либо предложите свое решение.
Мы всегда открыты к диалогу.
Вы лишь ограничены своим бюджетом и фантазией.
Мы легко изменим любой наш проект под привычки и потребности вашей семьи.
Есть свой проект или необычная идея? Мы готовы реализовать любые дизайнерские фантазии с нуля. Вы ограничены только вашим воображением и бюджетом!
1. «Тёплый контур» / «Дом под отделку» - 3 200 000 руб.
2. «Оптима» / «Стандарт» - 4 500 000 руб.
3. «Максимальная» - 4 700 000 руб
«Тёплый контур» / «Дом под отделку»
Идеальная база для тех, кто хочет сэкономить и построить своими силами.. Вы получаете полноценный дом: фундамент, стены, крыша, качественные окна и входная дверь. Дом закрыт от осадков, можно делать внутренние работы в своем темпе.
Инженерку и отделку сможете сделать сами или заказать у нас позже, когда появятся деньги
«Оптима» / «Стандарт»
Золотая середина. Дом готов с отделкой, инженерка включена (скважина до 40 м, канализация септик) заезжай и живи.
«Максимальная»
Улучшенная версия «Оптима» / «Стандарт», в которую включена подсветку фасада, душевой поддон с трапом 600 мм, душевая стойка с тропическим душем, подогрев электро мокрых зон (мат).
В комплектацию «Тёплый контур» / «Дом под отделку» входит:
- фундамент - ж/б сваи 150/150/3000
- обвязка: 150/150 сухая строганная доска камерной сушки с септированием
- супердиффузионная мембрана ondutiss PRO AM 130
- лаги пола: доска камерной сушки 45/195
- утепление пола 200 мм
- каркас с шагом стоек 600 мм из сухой строганной доски камерной сушки 45/145
- стропила: доска камерной сушки 45/145
- межкомнатные перегородки 150 мм либо 100 мм с шумоизоляцией
- пароизоляция с отсечением наружных стен ondutiss smart D
- проклейка швов мембраны и пароизоляции скотчем isover paranet
- утеплитель isover тёплый дом плита (610мм)
- металлочерепица M35 Monterra (цвет на выбор)
- наружная отделка: профлист
- наличники на окна, углы, свесы крыши, торцы из планкена высшего сорта с пропиткой маслом в любой цвет. Монтаж с зазором 3 мм
- терраса: все деревянные элементы с пропиткой маслом в 2 слоя.
- полы: террасная доска ель 20/145
- лестница (времянка)
- окна melke 6 камер профиль, 2ух камерный стеклопакет
- отливы на окна 150 мм (цвет на выбор)
- цокольные панели u-plast кирпич (цвет на выбор)
- отливы на цоколь (70мм цвет на выбор)
В комплектацию «Оптима» / «Стандарт» входит все из комплектации «Тёплый контур» / «Дом под отделку» и дополнительно вы получаете:
- снегозадержатели по периметру крыши
- водосточная система (цвет на выбор)
- наружная отделка: профлист
- точка подключения стиральной машины
- трап с сухим затвором (страховочный)
- коллектора горячего и холодного водоснабжения на нужное количество выводов
- водонагреватель на 105 литров
- фильтр 0.5 микрон
- на кухне выполнены выводы и подача воды для раковины, посудомойки
- санузел: керамогранит (с гидроизоляцией)
- углы в санузле с герметизацией (в цвет затирки)
- душевая кабинка
- унитаз с инсталляцией (кнопка в стене, цвет на выбор)
- зеркало с подсветкой
- раковина с тумбой, смеситель
- потолки натяжные (запас точек освещения в 2 раза от рекомендованных производителем)
- двери межкомнатные влагостойкие с антивандальным покрытием
- ручки и завертки на выбор
- дверь входная с терморазрывом
- стены имитация бруса 20 мм с покраской в 2 слоя (цвет на выбор)
- подоконники белые 150 мм
- наличники, доборы и прочее с покраской
- плинтус (цвет на выбор)
- напольное покрытие ламинат 33 кл
- обогреватели под каждым окном
- скважина до 35 метров (шнековое бурение)
- вся автоматика для скважины
- завод воды в дом с обязательной укладкой греющего кабеля не менее 5 метров
- септик гринсток 2 м³ (станция биологической очистки как доп опция)
Отличия комплектации «Максимальная» от «Оптима» / «Стандарт»:
- душевой поддон с трапом 600 мм
- душевая стойка с тропическим душем
- подогрев электро мокрых зон (мат)
- подсветка фасада
Полное сопровождение ипотеки БЕСПЛАТНО! Возьмем на себя все хлопоты: подберем выгодную программу, подготовим документы, подадим заявки и будем контролировать одобрение. Повысим ваши шансы на одобрение и сэкономи ваше время! Работаем с опытным юристом.

























