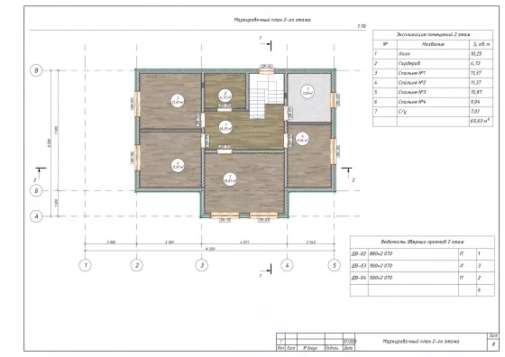
Зимний дом 180 кв м в комплектации
| Стоимость | 9 200 000 |
|---|---|
| Категория земли | ИЖС |
| Тип строения | Дом |
| Площадь, кв.м. | 180 |
| Регион страны | Санкт-Петербург |
|---|---|
| Район | Красносельский район |
| Населенный пункт | Северная Верфь |
| Населенный пункт рядом | Красное Село |
| Метро | проспект Ветеранов, 25 мин. транспортом |
Качественный, крепкий и теплый дом для постоянного проживания.
Стоимость 9 200 000 руб цена за дом с отделкой и коммуникациями готовый к проживанию.
Есть множество вариантов планировок, выбирайте из наших готовых. Они доведены до совершенства нашим проектировщиком на основе опыта десятков уже построенных домов либо предложите свое решение.
Мы всегда открыты к диалогу.
Вы лишь ограничены своим бюджетом и фантазией.
Мы легко изменим любой наш проект под привычки и потребности вашей семьи.
Есть свой проект или необычная идея? Мы готовы реализовать любые дизайнерские фантазии с нуля. Вы ограничены только вашим воображением и бюджетом!
1. «Тёплый контур» / «Дом под отделку» - 7 500 000 руб.
2. «Оптима» / «Стандарт» - 9 200 000 руб.
3. «Максимальная» - 10 500 000 руб
«Тёплый контур» / «Дом под отделку»
Идеальная база для тех, кто хочет сэкономить и построить своими силами.. Вы получаете полноценный дом: фундамент, стены, крыша, качественные окна и входная дверь. Дом закрыт от осадков, можно делать внутренние работы в своем темпе.
Инженерку и отделку сможете сделать сами или заказать у нас позже, когда появятся деньги
«Оптима» / «Стандарт»
Золотая середина. Дом готов с отделкой, инженерка включена (скважина до 40 м, канализация септик) заезжай и живи.
«Максимальная»
Улучшенная версия «Оптима» / «Стандарт», в которую включена сауна, 1 этаж напольное покрытие керамогранит, дополнительная спальня, подсветка фасада
В комплектацию «Тёплый контур» / «Дом под отделку» входит:
- фундамент- ж/б сваи 150/150/3000
- обвязка: 150/150 сухая строганная доска камерной сушки с септированием
- супердиффузионная мембрана ondutiss PRO AM 130
- лаги пола: доска камерной сушки 45/195
- утепление пола 200 мм
- каркас с шагом стоек 600 мм из сухой строганной доски камерной сушки 45/145
- стропила: доска камерной сушки 45/145
- межкомнатные перегородки 150 мм либо 100 мм с шумоизоляцией
- пароизоляция с отсечением наружных стен ondutiss smart D
- проклейка швов мембраны и пароизоляции скотчем isover paranet
- утеплитель isover тёплый дом плита (610мм)
- металлочерепица M35 Monterra (цвет на выбор)
- наружная отделка: сайдинг
- наличники на окна, углы, свесы крыши, торцы из планкена высшего сорта с пропиткой маслом в любой цвет. Монтаж с зазором 3 мм
- терраса: все деревянные элементы с пропиткой маслом в 2 слоя.
- полы: террасная доска ель 20/145
- лестница (времянка) х2
- окна melke 6 камер профиль, 2ух камерный стеклопакет
- отливы на окна 150 мм (цвет на выбор)
- цокольные панели u-plast кирпич (цвет на выбор)
- отливы на цоколь (70мм цвет на выбор)
В комплектацию «Оптима» / «Стандарт» входит все из комплектации «Тёплый контур» / «Дом под отделку» и дополнительно вы получаете:
- снегозадержатели по периметру крыши
- водосточная система (цвет на выбор)
- наружная отделка: имитация бруса
- точка подключения стиральной машины
- трап с сухим затвором (страховочный)
- коллектора горячего и холодного водоснабжения на нужное количество выводов
- водонагреватель на 105 литров
- фильтр 0.5 микрон
- котёл Termex двухконтурный
- коллектор тёплого пола (рассчитывается согласно площади помещений. Не олее 60 метров трубы на контур)
- на кухне выполнены выводы и подача воды для раковины, посудомойки
- санузел: керамогранит (с гидроизоляцией)
- углы в санузле с герметизацией (в цвет затирки)
- душевой поддон с трапом 600 мм (выполняется с бортом, отделан керамогранитом)/ванна х2
- душевая стойка с тропическим душем х2
- унитаз с инсталляцией (кнопка в стене, цвет на выбор) х2
- зеркало с подсветкой х2
- раковина с тумбой, смеситель х2
- потолки натяжные (запас точек освещения в 2 раза от рекомендованных производителем)
- двери межкомнатные влагостойкие с антивандальным покрытием
- ручки и завертки на выбор
- дверь входная с терморазрывом
- стены имитация бруса 20 мм с покраской в 2 слоя (цвет на выбор)
- подоконники белые 150 мм
- наличники, доборы и прочее с покраской
- плинтус (цвет на выбор)
- 1 этаж стяжка пола 6−10см +пеноплекс 30 мм
- 1 и 2 этаж напольное покрытие ламинат 33 кл
- лестница хвойных пород
- 1 этаж трубы тёплого пола pex-a, 2 этаж радиаторы
- скважина до 35 метров (шнековое бурение)
- вся автоматика для скважины
- завод воды в дом с обязательной укладкой греющего кабеля не менее 5 метров
- септик гринсток 2 м³ (станция биологической очистки как доп опция)
- сетка от грызунов
Отличия комплектации «Максимальная» от «Оптима» / «Стандарт»:
- 1 этаж напольное покрытие керамогранит
- дополнительная спальня
- подсветка фасада
- сауна
Полное сопровождение ипотеки БЕСПЛАТНО! Возьмем на себя все хлопоты: подберем выгодную программу, подготовим документы, подадим заявки и будем контролировать одобрение. Повысим ваши шансы на одобрение и сэкономи ваше время! Работаем с опытным юристом.













































































