Зимний дом 132 кв м в Русско-Высоцком
| Стоимость | 8 000 000 |
|---|---|
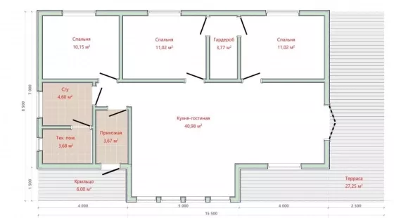
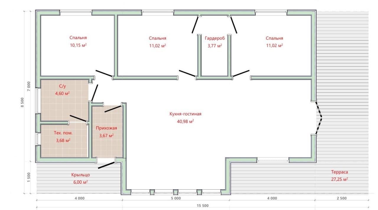
| Комнат в доме | 4 |
| Категория земли | ИЖС |
| Ремонт | Eвроремонт |
| Электричество | Есть |
| Канализация | Есть |
| Водопровод | Есть |
| Расстояние до города в км | 2 |
| Мощность, кВт | 15 |
| Категория земли | Индивидуальное жилищное строительство (ИЖС) |
| Материал стен (Авито дома) | Брус |
| Тип отопления cian | Электрическое |
| Транспортная доступность avito | Асфальтированная дорога, Остановка общественного транспорта, Железнодорожная станция |
| Способ продажи дополнительно | Можно в ипотеку |
| Канализация (cian) | Септик |
| Водоснабжение (cian) | Центральное |
| Тип дома cian | Деревянный |
| Мультимедиа - avito | Wi-Fi, Телевидение |
| Дополнительно (в доме) avito | Терраса или веранда |
| Водоснабжение avito | Скважина |
| Канализация avito | Септик |
| Газ avito | По границе участка |
| Тип строения | Дом |
| Площадь, кв.м. | 132 |
| Площадь участка, сот | 12 |
| Этажность | 1 |
| Материал стен | Брус |
| Регион страны | Ленинградская область |
|---|---|
| Район | Ломоносовский район |
| Населенный пункт | село Русско-Высоцкое |
| Улица | проезд Дружбы народов |
| Метро | проспект Ветеранов, 25 мин. транспортом |
Зимний дом в Русско-Высоцкое для постоянного проживания.
- Земли населенных пунктов.
Поселок газифицирован. Электричество 15 Квт. Канализация септик.
- Возможность покупки: Семейная ипотека. Материнский капитал.
и конечно за собственные средства (👍 - скидка).
Дом продается от застройщика (юридическое лицо - семейная ипотека).
⚡️Вы будете первым владельцем (Преимущество -без истории).
Застройщик строит с 2014, сдал более 300 загородных домов.
В качестве и в гарантиях с можете убедится при просмотре объекта.
Дом на этапе строительства.
Прямая продажа.
- Место идеально подходит как для дачников, желающих отдохнуть от городской суеты, так и для постоянного проживания со всей его инфраструктурой.
- Возникли вопросы, спрашивайте – будем рады ответить. Это наша работа.
4.1. Информацию по участку. Кадастровый номер. Транспортная доступность. Дополнительные фото, информация по котлу, полу с подогревом, евро сантехники, отделочным материалам и гарантии на них.
4.2. Вопросы по юридической составляющей, земле и дому.
4.3.Помощь в получение ипотеки в сложной ситуации, спрашивайте.
Звоните, пишите –ждем.
- Особое внимание:
В пешей доступности находятся все необходимые объекты городской инфраструктуры: две школы, детский сад, дом культуры, продуктовые и строительные магазины, АЗС, поликлиника, аптека, отделение почты и офис Сбербанка. Хорошее транспортное сообщение с СПб. В пешей доступности остановка общественного транспорта.
- Дом вам точно понравится.
Звоните! Ответим на все Ваши вопросы и организуем показ.
Ленинградская область, Ломоносовский район, Русско-Высоцкое с/пос, Русско-Высоцкое село































