Зимний дом 93 кв м в Красное Село
| Стоимость | 5 200 000 |
|---|---|
| Комнат в доме | 2 |
| Категория земли | ИЖС |
| Ремонт | Eвроремонт |
| Электричество | Есть |
| Канализация | Есть |
| Водопровод | Есть |
| Расстояние до города в км | 2 |
| Мощность, кВт | 15 |
| Основное название поселка | СНТ Северная верфь |
| Категория земли | Индивидуальное жилищное строительство (ИЖС) |
| Тип отопления cian | Электрическое |
| Транспортная доступность avito | Асфальтированная дорога, Остановка общественного транспорта, Железнодорожная станция |
| Способ продажи дополнительно | Можно в ипотеку |
| Канализация (cian) | Септик |
| Водоснабжение (cian) | Центральное |
| Тип дома cian | Деревянный |
| Мультимедиа - avito | Wi-Fi, Телевидение |
| Дополнительно (в доме) avito | Терраса или веранда |
| Водоснабжение avito | Скважина |
| Канализация avito | Септик |
| Газ avito | По границе участка |
| Тип строения | Дом |
| Площадь, кв.м. | 93 |
| Площадь участка, сот | 12 |
| Этажность | 2 |
| Материал стен | Брус |
| Регион страны | Санкт-Петербург |
|---|---|
| Район | Красносельский район |
| Населенный пункт | Северная Верфь |
| Населенный пункт рядом | Красное Село |
| Метро | проспект Ветеранов, 25 мин. транспортом |
Дом предназначен для постоянного проживания!!
Очень популярная модель каркасного дома, подобных построено более 200 зданий.
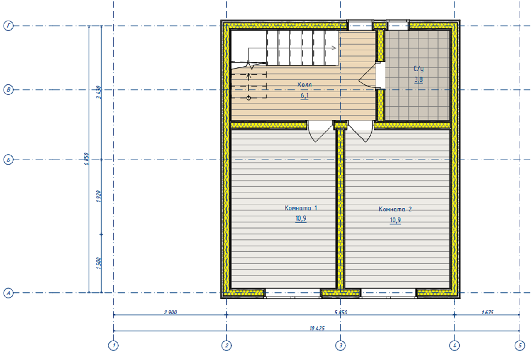
1 санузел - душевая с тропическим душем, инсталляция, раковина с тумбой, зеркало.
2 санузел- ванная, унитаз, раковина с тумбой, зеркало.
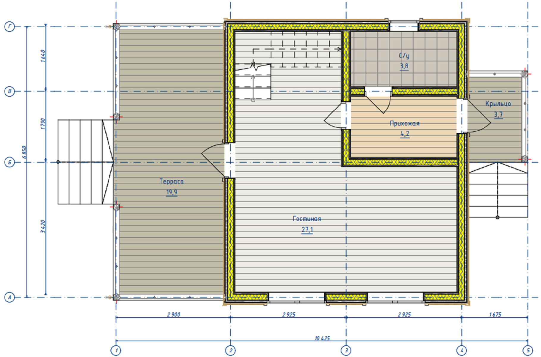
Большая кухня-гостиная 29м² с отдельным выходом на большую террасу 19м² , панорамные окна залог большого объёма натурального света.
Вторая терраса 4 м² .
2 удобные спальни на втором этаже по 12 м². Отделка имитацией бруса с покраской. Натяжные потолки с большим количеством точек освещения. Лестница на второй этаж сделана на заказ. На полах ламинат 33ий класс. Влагостойкие двери с антивандальным покрытием. Входная дверь с терм разрывом 11.5 см. По периметру установлена иллюминация свесов и террас, освещает ночью весь участок. Канализация от гринсток' разведена и подключена. Собственная скважина 40 метров с питьевой водой Бесплатно и навсегда!
Дизайнерские конвекторы под каждым окном. В прихожей и санузлах установлен подогрев полов ! В доме ооочень тепло!
Горячая и холодная вода разведена по дому, предусмотрены все подключения (стиральная машина, плита, посудомойка,)
В доме 5 мест установки больших шкафов для хранения вещей.
В доме очень много розеток (19 только на кухне)
Дом в обязательном порядке проходит проверку тепловизором и аэродверью!
Полное сопровождение ипотеки БЕСПЛАТНО!!! Возьмем на себя все хлопоты: подберем выгодную программу, подготовим документы, подадим заявки и будем контролировать одобрение. Повысим ваши шансы на одобрение и сэкономим ваше время! Работаем с опытным юристом.
-аккредитация в банках Сбер, Дом РФ, Альфа, Втб.
- дизайнер, проектировщик, инженер- лучшие специалисты, за которых Вы ,не будете платить! Это подарок компании!
- фундамент- ж/б сваи 150/150/3000
- обвязка : 150/150 сухая строганная доска камерной сушки с септированием
- сетка от грызунов
- супердиффузионная мембрана ondutiss PRO AM 130
- лаги пола: доска камерной сушки 45/195
- утепление пола 300мм
- каркас с шагом стоек 600мм из сухой строганной доски камерной сушки 45/145
- стропила: доска камерной сушки 45/145 с перекрёстным утеплением (общее утепление 200мм)
- межкомнатные перегородки 150мм либо 100мм с шумоизоляцией
- пароизоляция с отсечением наружных стен ondutiss smart D
- проклейка швов мембраны и пароизоляции скотчем isover paranet
- утеплитель isover тёплый дом плита (610мм)
- металлочерепица M35 Monterra (цвет на выбор)
- снегозадержатели по периметру крыши
- водосточная система (цвет на выбор)
- наружная отделка : сайдинг (имитация бруса, фальц, фиброцемент является дополнительной опцией)
- наличники на окна, углы, свесы крыши, торцы из планкена высшего сорта с пропиткой маслом в любой цвет. Монтаж с зазором 3 мм
- терраса: все деревянные элементы с пропиткой маслом в 2 слоя.
- полы :террасная доска ель 20/145
- ограждение террасы (форма на выбор)
- лестница (времянка)
- внутренняя лестница : ель высшего сорта с пропиткой (в случае наличия второго этажа)
- окна melke 6 камер профиль, 2ух камерный стеклопакет
- отливы на окна 150мм( цвет на выбор)
- цокольные панели u-plast кирпич (цвет на выбор)
- отливы на цоколь (70мм цвет на выбор)
- подоконники белые 150мм
- сетки москитные (доп опция)
- котельная:
- точка подключения стиральной машины
- трап с сухим затвором (страховочный)
- коллектора горячего и холодного водоснабжения на нужное количество выводов
- водонагреватель на 105 литров
- фильтр 0.5 микрон
- котёл Baxy двухконтурный
- коллектор тёплого пола( рассчитывается согласно площади помещений. Не более 60 метров трубы на контур)
- на кухне: выполнены выводы и подача воды для раковины, посудомойки
- санузел
- керамогранит на стенах и полу ( с гидроизоляцией)
- углы в санузле с герметизацией( в цвет затирки)
- душевой поддон с трапом 600мм (выполняется с бортом, отделан керамогранитом)
- душевая стойка с тропическим душем
- унитаз с инсталляцией (кнопка в стене, цвет на выбор)
- зеркало с подсветкой
- раковина с тумбой
- смеситель
- потолки натяжные (запас точек освещения в 2 раза от рекомендованных производителем)
- двери межкомнатные влагостойкие с антивандальным покрытием
- ручки и завертки на выбор
- дверь входная с терморазрывом
- стены: имитация бруса 20мм с покраской в 2 слоя (цвет на выбор)
- наличники , доборы и прочее с покраской
- плинтус (цвет на выбор)
- стяжка пола 6-10см
- трубы тёплого пола pex-a
- напольное покрытие керамогранит (на выбор)
- скважина до 35 метров ( шнековое бурение)
- вся автоматика для скважины
- завод воды в дом с обязательной укладкой греющего кабеля не менее 5 метров
- септик гринсток 2 м³ (станция биологической очистки как доп опция)
Комплектация " Теплый контур" - 4 400 000 руб.
Комплектация " Люкс"- 5 200 000 руб.
Комплектация "Колпакофф"- 5 600 000 руб.
Хотите узнать стоимость и сроки строительства вашего дома? Звоните — обсудим ваш проект и сделаем индивидуальный расчёт!





















































