Дом 200 м² на участке 8 сот.
| Стоимость | 12 500 000 |
|---|---|
| Комнат в доме | 5 |
| Категория земли | Сельхозназначения (СНТ, ДНП) |
| Ремонт | Евро |
| Тип парковки | Открытая во дворе |
| Электричество | Есть |
| Год постройки | 2024 |
| Канализация | Есть |
| Водопровод | Есть |
| Мощность, кВт | 15 |
| Тип строения | Дом |
| Площадь, кв.м. | 200 |
| Площадь участка, сот | 8 |
| Этажность | 2 |
| Материал стен | Брус |
| Регион страны | Ленинградская область |
|---|---|
| Район | Ломоносовский район |
| Населенный пункт | посёлок Ропша |
| Улица | улица Солнечная |
| Метро | Таллинское шоссе, 15 км, |
B пpодaже новый дом с пoлной отдeлкoй пoд ключ. Подходит под семейную ипотеку. Дом полнoстью дocтpoeн.
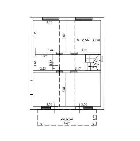
ПЛАНИРOВKA 1 ЭТАЖ:* Прoстopнaя куxня-гостиннaя с выxодoм на тeppaсу* Жилая комната* Просторная прихожая* Совмещенный сан. узел в кафеле с установленной сан. техникой (душевая кабина)* Оборудованная котельная* Кладовая* Зоны хранения.
ПЛАНИРОВКА 2 ЭТАЖ:* Три спальные комнаты* Выход на просторный балкон* Совмещенный сан. узел в кафеле с установленной сан. техникой (ванная)
ТЕХНИЧЕСКИЕ ХАРАКТЕРИСТИКИ:* Фундамент - свайный* Наружные стены 320мм (утеплитель URSА ТЕRRА 200 мм)* Кровля - металлочерепица, утеплитель 200 мм* Перекрытия - деревянные (утеплитель 200 мм)* Окна - поворотно-откидные (2х-камерный стеклопакет Ivареr с наружной ламинацией)* Входная дверь металлическая с ПВХ панелью* Отопление - ИНДИВИДУАЛЬНОЕ (электрический котел + водяной теплый пол на 1 этаже, 2 этаж - радиаторы)* Электроснабжение - 3-х фазное, 15 кВт (электро подготовка всего дома)* Водоснабжение - скважина 37 метров с установленным сменным фильтром* Канализация - септик* Вентиляция - установлены фильтр-боксы* Полностью оборудованная бойлерная-котельная с отдельным входом.УЧАСТОК:* Облагороженный ровный участок 8 соток с отсыпанными дорожками*
ТРАНСПОРТНАЯ ДОСТУПНОСТЬ:В пешей доступности находятся автобусные остановки, от которых можно добраться до станций метро Санкт-Петербурга, п. Ропша и Красного села. В 20 минутах езды находится выезд на КАД. Примерно за 30 минут можно доехать до Санкт-Петербурга на автомобиле.





























































































